Osaka W630S/WA630S/WB630S Liquid-Ring Vacuum Pumps

Manufacturer: Osaka Vacuum, Ltd.
Model: W630S/WA630S/WB630S

Features

  • Ideal for exhausting water vapor, water droplets, and organic solvents.
  • Good also for exhausting gases with dust and particles.
  • It can also exhaust flammable corrosive gases.
  • Simple construction, economical design.
  • Material and seal type can also be changed.
  • A variety of sealing liquids can be used.
  • Effective as the final stage in compound exhaust systems.
  • Can achieve base pressure below the steam pressure of the liquid ring by attached the air ejector.
  • A 2-stage air ejector offers even better pressure.

Specifications

ModelW630SWA630S※1WB630S※2
Inlet flange80A JIS B 2290 VF
Nominal pumping speed

(m3/h)

50Hz 630
60Hz630
Base pressure

(kPa)※3

2.70.80.13
Rotating speed

(min-1)

50Hz950
60Hz950
Standard motor output

(kW)

30
Refill water level

(m3/h)※4

4.8
Weight

(kg)

With fully-enclosed fan cooled indoor-use motor※590010201050
Without motor700730760

*1 : WA is equipped with a single-stage air-ejector.
*2 : WB is equipped with a 2-stage air-ejector.
*3 : For a water temperature of 15℃.
*4 : Maximum refilling water temperature should be 35℃.
*5 : Non-standard motors are also available.
-Allowable ambient temperature: 10 to 40℃ during operation, -5 to +60℃ in storage.
-Drain water before storing to prevent freezing over.

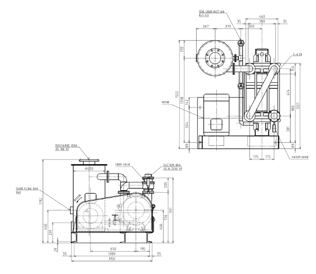
Dimensions

REQUEST QUOTATION

PAYMENT

payment-methods

LINK

koueigroup-banner1
koueigroup-banner1

Return Top