Yamato Electric
Yamato Electric CAB-101KE-A Side Mounting Type

Manufacturer: Yamato Electric Co., Ltd.
Model: CAB-101KE-A
Special Specification Cooler Translation
This is a special specification cooler featuring a stainless steel (SUS) enclosure.
It has excellent environmental resistance allowing use both indoors and outdoors.
The exterior panel is made of stainless steel, and the heat exchanger and piping are treated for corrosion resistance.
- Achieves excellent high waterproof performance.
- Low noise (55dB), allowing installation virtually anywhere.
- Wide operating ambient temperature range (-5°C to 45°C).
Features List (Available features vary by model)
![]() | ![]() | ![]() | ![]() | ![]() | ![]() | ![]() |
| Refrigerant Pressure Abnormality Alarm | Temperature Sensor Abnormality Alarm | Panel Internal Temperature Abnormality Display | Frost/Freezing Prevention Function | Overload Protection Device | Low Noise | Stainless Steel Enclosure |
|---|---|---|---|---|---|---|
| If the refrigerant pressure rises due to filter clogging or other issues, the unit stops abnormally and the alarm contact is activated. | The unit stops and the alarm contact is activated if there is an abnormality in the panel internal temperature sensor or the evaporator temperature sensor. | An abnormality is displayed if the panel internal temperature reaches the set temperature plus 10°C or higher. | Automatically stops to prevent frost growth on the evaporator. | If the compressor continues to operate under an overload condition, the protection device automatically stops the compressor. | Industry-leading low noise achieved through the adoption of sirocco fans. | Stainless steel material is used for the exterior panel. |
V.AN COOL (Side Mounting) CAB-101KE-A
Cooling Capacity: 900/1000 W
- A cooler with excellent environmental resistance, usable both indoors and outdoors.
- Adopts stainless steel material for the exterior panel, and applies corrosion-resistant treatment to the heat exchanger and piping.
- Excellent high waterproof performance.
- Achieves low noise (55dB), allowing installation virtually anywhere.
- Wide operating ambient temperature range (-5 ~ 45°C).
![]() | ![]() | ![]() | ![]() | ![]() | ![]() | ![]() |
| Refrigerant Pressure Abnormality Alarm | Temperature Sensor Abnormality Alarm | Panel Internal Temperature Abnormality Display | Frost/Freezing Prevention Function | Overload Protection Device | Low Noise | Stainless Steel Enclosure |
|---|

Specifications
| Mounting Method | Side Mounting |
|---|---|
| Model | CAB-101KE-A |
| Cooling Capacity Note 1 (W) | 900 / 1000 |
| Power Source Single Phase (V) | 100 |
| Power Consumption Note 1 (W) | 440 / 480 |
| Operating Current Note 1 (A) | 5.2 / 4.8 |
| Starting Current Note 1 (A) | 25 / 24 |
| Recommended Leakage Breaker Capacity Note 2 (A) | 20 |
| Operating Noise [dB(A)] | 55 |
| Refrigerant (Sealed Amount) (g) | R-134a (280) |
| Panel Internal Temperature Setting Range (°C) | 25 ~ 45 |
| Ambient Temperature Range (°C) | -5 ~ 45 |
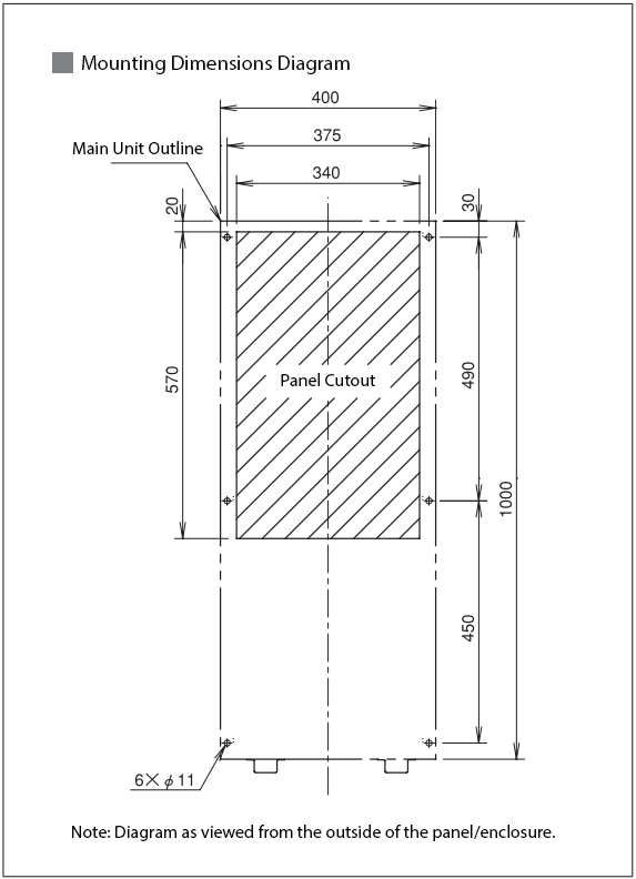
| External Dimensions (W × H × D) (mm) | 400 × 1000 × 260 |
| Mass (kg) | 37 |
| Material · Surface Finish | Stainless Steel Hairline Finish |
| Accessories | Mounting Nuts (M8) 6 pcs Drain Hose (2m) 1 pc Hose Clamp 1 pc |
Note 1: Rated value at: Control Panel internal dry bulb temp 35°C, wet bulb temp 19.5°C, and Control Panel external dry bulb temp 35°C. Cooling capacity is based on Technical Document No. 007 of the Industrial Association of Thermal Equipment for Control Panels.
Note 2: Rated sensitivity current 15mA.
The values indicated by / are 50Hz on the left and 60Hz on the right.
Cooling Performance Characteristics Graph

| Side Mounting CAB-C101KE-A |
|---|
![]() |
※Be sure to read the “Instruction Manual” before use, and use the product correctly and safely.



















