Yamato Electric
Yamato Electric KCD-10-D48 Side Mounting Type/ Outdoor Use

Manufacturer: Yamato Electric Co., Ltd.
Model: KCD-10-D48
Outdoor Cooler Translation
As advanced communication networks develop, network systems are present everywhere outdoors. The outdoor cubicle model reliably protects the internal equipment even under severe conditions such as sun exposure, wind, rain, and dust. Furthermore, by adopting low-noise sirocco fans proven in building air conditioners and multi-stage control tailored to the air conditioning load, we have achieved the industry’s top-class ultra-low noise level of 40dB (KCD-10-1).
High Waterproof Performance
- JISC0920 Protection class 4 or higher.
- No harmful water leakage at wind speeds of 20m/s and water flow of 4L/m2 · min.
- No harmful damage or breakage at wind speeds of 40m/s.
Excellent Environmental Resistance
- The exterior panel uses highly corrosion-resistant hot-dip galvanized steel sheet with a heavy anti-salt damage coating.
- The heat exchanger on the heat dissipation side uses aluminum fins treated for corrosion resistance and further coated with urethane resin. Achieves rust prevention performance of 1000 hours or more in the salt spray test (JISC5400).
Compliant with NTT-TR (KCD-10/20).
- Enables reliable temperature management without interfering with advanced network equipment.
- Measurement of radiated disturbance waves (TR55004 and VCCI CLASS B)
- Measurement of power line conducted disturbance waves (TR55004 and VCCI CLASS B)
- Radiated immunity test (TR 549001) (IEC 61000-4-3)
- Conducted immunity test (TR 549001) (IEC 61000-4-3)
- Electrical Fast Transient test (EFT/B) (TR 549001) (IEC 61000-4-2)
- Electrostatic discharge test (ESD test) (TR 549001) (IEC 61000-4-2)
- Lightning surge application test (TR 189001) (IEC 61000-4-5)
Features List (Available features vary by model)
![]() | ![]() | ![]() | ![]() | ![]() |
| Maintenance Notification Function | Refrigerant Pressure Abnormality Alarm | Temperature Sensor Abnormality Alarm | Panel Internal Temperature Abnormality Display | Overload Protection Device |
|---|---|---|---|---|
| Displays a filter check output signal at set intervals. | If the refrigerant pressure rises due to filter clogging or other issues, the unit stops abnormally and the alarm contact is activated. | The unit stops and the alarm contact is activated if there is an abnormality in the panel internal temperature sensor or the evaporator temperature sensor. | An abnormality is displayed if the panel internal temperature reaches the set temperature plus $10^\circ\text{C}$ or higher. | If the compressor continues to operate under an overload condition, the protection device automatically stops the compressor. |
![]() | ![]() | ![]() | ![]() | ![]() |
| Outdoor Specification | Inverter Control | Self-Diagnosis Function | Low Noise | DC 48V Compatibility |
| A cooler for outdoor control panel cooling. | Energy saving is achieved through inverter control. | Added more detailed diagnostic functions when an error occurs. | Industry-leading low noise achieved through the adoption of sirocco fans. | Can handle a wide range of voltage fluctuations (-40 ~ -59V). |
V.AN COOL (Side Mounting) KCD-10-D48
Cooling Capacity: 1000 W
- Excellent environmental performance due to frame treated with heavy anti-salt damage coating.
- Wide operating ambient temperature range (-10 ~ 50°C).
- Achieved weight reduction for the cooler (17kg reduction in the 1000W class, compared to our previous model).
![]() | ![]() | ![]() | ![]() | ![]() |
| DC 48V Compatibility | Inverter Control | Low Noise | Self-Diagnosis Function | Outdoor Specification |
|---|

Specifications
| Mounting Method | Side Mounting |
|---|---|
| Model | KCD-10-D48 |
| Cooling Method | Compressor Inverter Control |
| Cooling Capacity Note 1 (W) | 1000 (600 ~ 1100) |
| Power Source Single Phase (V) | DC -48 (-40 ~ -59) |
| Power Consumption Note 1 (W) | 325 (Max 560) |
| Operating Current Note 1 (A) | 6.0 (Max 10.5) |
| Operating Noise [dB(A)] | 48 |
| Panel Internal Temperature Setting Range (°C) | 25 ~ 45 |
| Ambient Temperature Range (°C) | -10 ~ 50 |
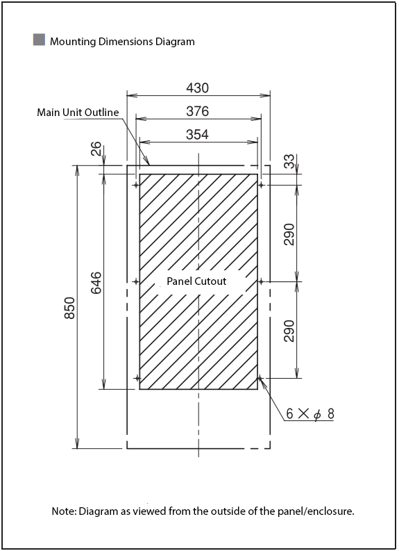
| External Dimensions (W × H × D) (mm) | 430 × 850 × 220 |
| Mass (kg) | 28 |
| Main Body Coating Color | 2.5Y9 / 1 |
| Unit Waterproof Standard | JIS C 0920 Protection Class 4 |
Note 1: Rated value at: Control Panel internal dry bulb temp 35°C, wet bulb temp 21.6°C, and Control Panel external dry bulb temp 35°C. Cooling capacity is based on Technical Document No. 007 of the Industrial Association of Thermal Equipment for Control Panels.
| Side Mounting KCD-10-D48 |
|---|
![]() |
※Be sure to read the “Instruction Manual” before use, and use the product correctly and safely.
Related Products
-

Yamato Electric KCH-22A Side Mounting Type/ Non-Freon Model
-

Yamato Electric FSN Series Uncoated Semi-Interlocking Flexible Conduit
-

Yamato Electric NSP-11L1 Locking Metal Fitting for NSP-11
-

Yamato Electric FAGH Series Corrugated Vinyl Coated Flexible Conduit (Super Oil-Resistant)
-

Yamato Electric CPX-07E Ceiling Mount Type
-

Yamato Electric Han Series Industrial Multi-pole Connectors
















